
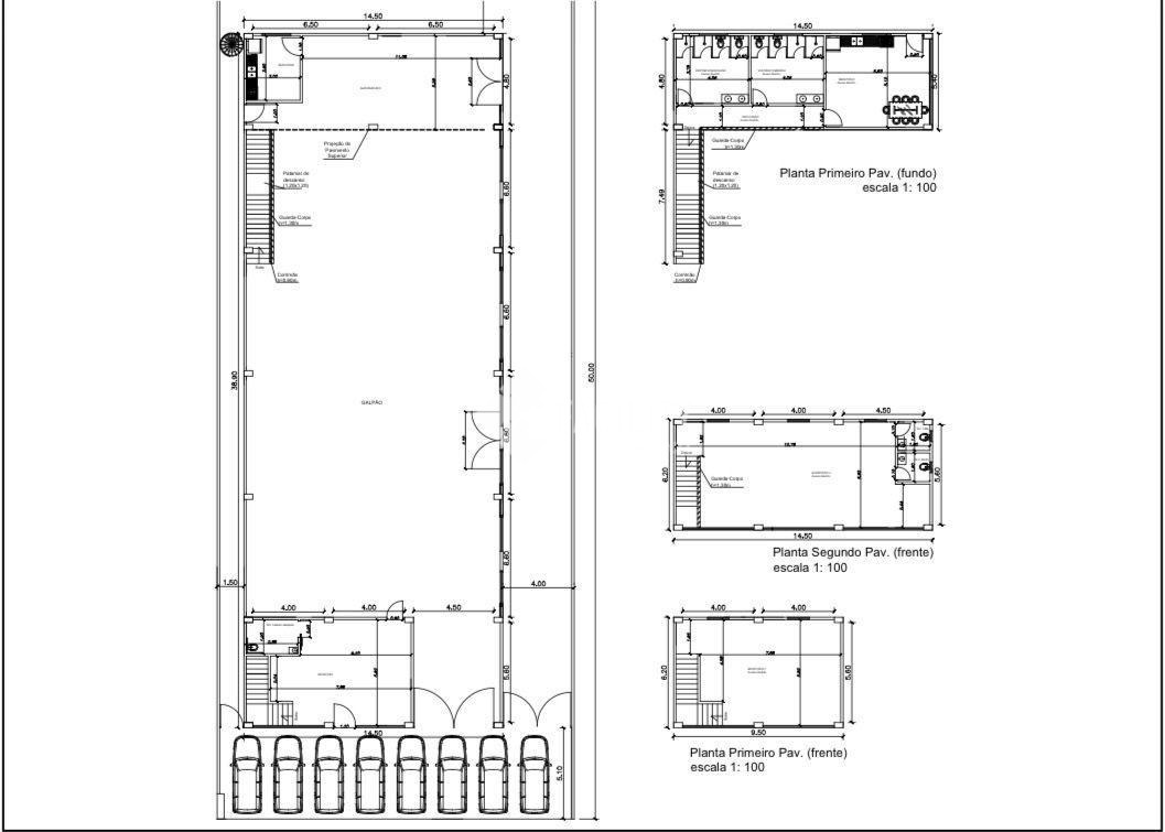
Galpão industrial à venda no bairro Vitória Martini, em Campinas. O imóvel possui 1.000 m² de terreno e 791,15 m² de área construída, com excelente estrutura para atividades industriais ou logísticas.
Conta com recepção com depósito e pavimentos de escritórios, incluindo segundo andar com banheiros masculino e feminino e copa. Possui ainda refeitório, cozinha, banheiro adaptado para cadeirante, depósito sob a escada e vestiários masculino e feminino com chuveiros.
Dispõe de doca, área externa com tanque e entrada lateral de serviço, facilitando a operação e logística do dia a dia.
O galpão encontra-se atualmente alugado, sendo uma excelente oportunidade para investidores que buscam renda imediata. Aproveite essa oportunidade e agende uma visita com um de nossos corretores. Imobiliária Facility.